SPACEINFRA
SPACEINFRA
ARCHITECTURE . CONSTRUCTION . MANAGEMENT
Home
About us
Services
Projects
Office Fitout
Residential
Retail And F&B
Group Housing
Sustainable Development
Clients
Contact
Group Housing
Home >
Project >
Group Housing
CITY CENTER, AMROHA
Scope: Architecture Design
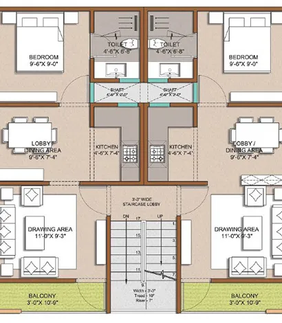
GROUP HOUSING, GREATER NOIDA
Scope: Architecture Design